Trilocale in vendita

Roma, Via maria luigia tancredi - Ponte Di Nona
€ 189.000
3 locali 3 locali
85 Mq 85 Mq
2 bagni 2 bagni

Trilocale in vendita

Roma, Via maria luigia tancredi - Ponte Di Nona

Descrizione annuncio

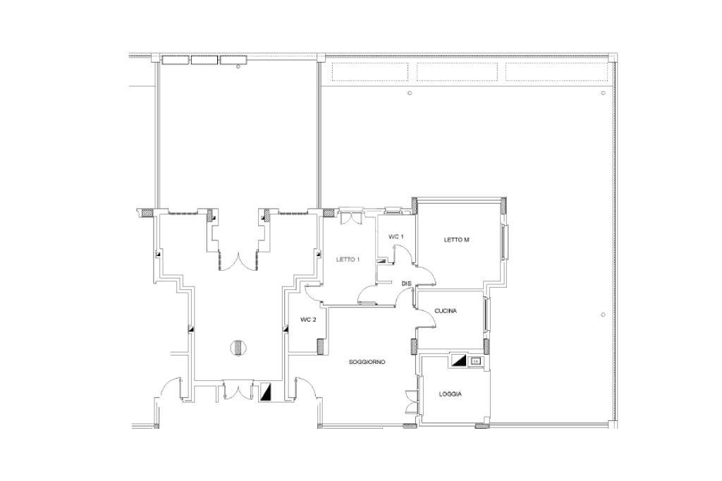
COLLE DEGLI ABETI - In via Maria Luigia Tancredi, nel cuore della tranquilla zona Colle degli Abeti, proponiamo in vendita un trilocale di circa 80 mq, situato al piano terra di una palazzina in contesto residenziale riservato. L’immobile internamente è composto da: soggiorno luminoso, cucina separata e abitabile, camera matrimoniale, cameretta e doppi servizi uno finestrato con vasca ed uno cieco con box doccia.

Punto di forza della proprietà è il giardino mattonato di circa 100 mq, ideale per momenti di relax all’aperto, pranzi e cene conviviali o per chi ha bambini e animali domestici. Completano la proprietà: box auto e cantina.

Soluzione ideale per famiglie o per chi cerca comfort, spazi esterni e tranquillità, senza rinunciare ai principali servizi e collegamenti.

Non lasciarti sfuggire questa occasione! Contattaci subito per fissare la tua visita.

Per info e visite: 06-22185555 / 351-9435395 anche WhatsApp
Dal Lunedì al Venerdì 9:00 - 13:00 / 15:30 - 20:00, Sabato 9:00 - 17:00 orario continuato.

COLLEGAMENTI
Automobile
Il Quartiere ha una uscita dedicata sull'A24, per immettersi sull'autostrada e le sue complanari.
In alternativa è possibile prendere la Collatina o la Prenestina. Inoltre per raggiungere il GRA è possibile immettersi all'uscita la Rustica, percorrendo Via di Salone e Via Noale.

Autobus
Il quartiere è collegato con il 314 (largo Preneste), lo 075 (stazione metro B Ponte Mammolo), 055 (stazione metro C Grotte Celoni), il 555 (stazione Ponte di nona fr2 e stazione metro c Borghesiana)

Treno
In Via Forlanini è presente la fermata del treno fr2 Roma Tivoli, che consente un collegamento in 30 minuti con la stazione Tiburtina e anche con stazione Termini con partenza ogni ora.

Ogni agenzia ha un proprio titolare ed è autonoma - Le presenti informazioni non costituiscono elemento contrattuale.

Mostra tutto

Nelle vicinanze

Trasporto pubblico Trasporto pubblico
Ponte Di Nona
Ponte Di Nona
1,5 Km
Ponte di Nona
Ponte di Nona
1,5 Km
Tonino Bello
Tonino Bello
360 m
Cerquete/Portocannone
Cerquete/Portocannone
420 m
Scuole Scuole
Scuole
400 m
Prampolini
770 m
Istituto comprensivo statale "Giuseppe Impastato"
1,3 Km
Scuola primaria statale
1,4 Km
Istituto Tecnico Agrario "Emilio Sereni"
2,3 Km
Farmacia Farmacia
Parafarmacia Qualifarma
830 m
Farmacia Palermo
1,3 Km
Farmacia
1,6 Km
Farmacia Colle del Sole
2,6 Km
Supermercati Supermercati
Panorama
760 m
Unico
1,8 Km
EuroSpin
2,1 Km
Supermercati
2,3 Km
Negozi Negozi
Panificio
1,4 Km
Ristoranti Ristoranti
Gli Antenati
1,2 Km
L'angolo del Gusto - ristorante e pizzeria
1,3 Km
Mostra tutto

Caratteristiche

Rif.:
61171911
Totale piani:
4
Box:
1
Camere da letto:
2
Arredamento:
Assente
Condizionamento:
Predisposizione impianto
Mostra tutto
Prezzo Prezzo
€ 189.000
Rata mutuo Rata mutuo
€ 877 / mese
Spese annue Spese annue
€ 1.080
Proponi il tuo prezzoProponi il tuo prezzo

Classe Energetica

F
F
F
F
F
F
F
F
F
EP globale non rinnovabile:
175.00 kW h/m² anno
EP globale rinnovabile:
175.00 kW h/m² anno
EP invernale del fabbricato:
EP estiva del fabbricato:
Anno di costruzione:
2009
Riscaldamento:
Autonomo
Tipo impianto:
Ad aria
Tipo alimentazione:
Metano

Ti interessa visionare l'immobile?

Fissa un appuntamento  Fissa un appuntamento

Richiedi informazioni

Clicca su Leggi per aprire l'informativa
* Questi campi sono obbligatori

Calcola il tuo mutuo

Semplice e senza impegno
Anticipo

( % )
Mutuo

( % )

pochi semplici passi

inserisci i tuoi dati
Questionario completato
Grazie per aver richiesto un appuntamento senza impegno con un nostro Consulente del Credito e Assicurativo.

Hai inserito correttamente tutti i dati necessari e a breve riceverai una e-mail con un link da convalidare per inviare i tuoi dati.
Affiliato
Studio Ponte Di Nona Srl
Via Raoul Chiodelli , 60 00132 Roma (RM)

Il nostro staff


  • Daniele Mori
    Affiliato
Via Raoul Chiodelli , 60 00132 Roma (RM)
Zona: Ponte di nona -Colle degli Abeti - Colle del Sole
Mostra su mappa
Orari: dal lunedì al venerdì dalle 9:00 alle 13:00 e dalle 15:30 alle 20:00 , il sabato dalle 9:00 alle 17:00 ORARIO CONTINUATO
Affiliato
Studio Ponte Di Nona Srl
Via Raoul Chiodelli , 60 00132 Roma (RM)

2026 Tecnocasa Franchising S.p.A. - P. IVA 08365160152 - Via Monte Bianco 60/A 20089 Rozzano (MI). Ogni agenzia ha un proprio titolare ed è autonoma. Privacy policy | Policy utilizzo | Cookie policy