Quadrilocale in vendita

Roma, Via Giuseppe de Piro - Ponte Di Nona Ovest
€ 219.000
4 locali 4 locali
100 Mq 100 Mq
2 bagni 2 bagni

Quadrilocale in vendita

Roma, Via Giuseppe de Piro - Ponte Di Nona Ovest

Descrizione annuncio

PONTE DI NONA - COLLE DEGLI ABETI

Ampio Appartamento in Classe 'A1' con Terrazzo Vivibile e Posto Auto Coperto

Proponiamo in vendita un luminoso appartamento al 1° piano di una palazzina in cortina recentemente riqualificata con interventi Superbonus 110%, che hanno portato l’edificio in Classe Energetica A1, garantendo elevato comfort abitativo e notevole risparmio energetico.

PIENA PROPRIETA' E PREZZO AFFRANCATO A LIBERO MERCATO.

Efficienza e Tecnologia L’immobile beneficia di importanti migliorie strutturali: Cappotto termico, pannelli fotovoltaici, infissi di ultima generazione, cantine coibentate e Wall box dedicata per ogni posto auto coperto. Una soluzione moderna, sostenibile e pronta per il futuro.

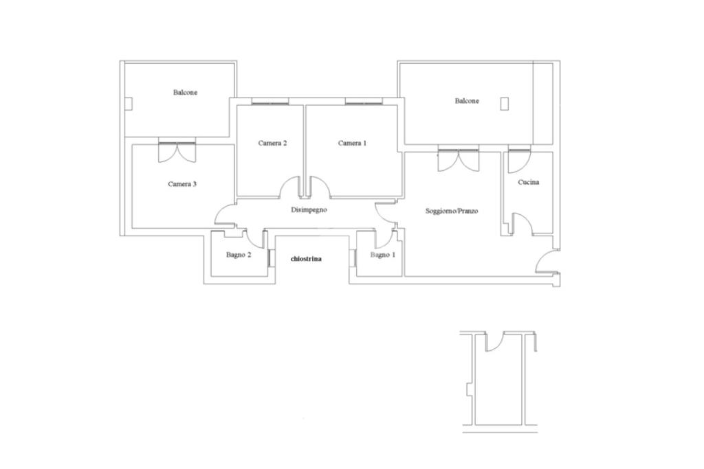
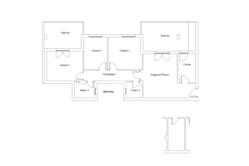
Spazi Ampi e Ben Distribuiti L’appartamento si distingue per ambienti generosi e funzionali: Ingresso con disimpegno, soggiorno con accesso diretto al terrazzo, cucina separata con uscita sul medesimo terrazzo, due camere matrimoniali di cui una con balcone, cameretta, due bagni finestrati: uno con vasca e uno con doccia. Il terrazzo vivibile rappresenta un vero valore aggiunto: perfetto per pranzi all’aperto, momenti di relax o convivialità con amici e famiglia.

Pertinenze e Comfort: .Posto auto coperto al piano seminterrato. .Cantina di proprietà coibentata, con ascensore e collegamento diretto al piano seminterrato.

Perché scegliere questo immobile? .Alta efficienza energetica
.Contesto condominiale curato
.Ambienti luminosi e spaziosi
.Dotazioni tecnologiche moderne
.Ideale per famiglie o per chi cerca comfort e sostenibilità

Una soluzione perfetta per chi desidera una casa pronta da vivere, efficiente e con spazi esterni godibili.

Per info e visite: 06-22185555 351-9435395 anche WhatsApp
dal Lunedì al Venerdì 9:00 - 13:00 / 15:30 - 20:00, Sabato 9:00 - 17:00 orario continuato.

COLLEGAMENTI
Automobile
Il Quartiere ha una uscita dedicata sull'A24, per immettersi sull'autostrada e le sue complanari.
In alternativa è possibile prendere la Collatina o la Prenestina. Inoltre per raggiungere il GRA è possibile immettersi all'uscita la Rustica, percorrendo Via di Salone e Via Noale.

Autobus
Il quartiere è collegato con lo 075 (stazione metro B Ponte Mammolo), 055 (stazione metro C Grotte Celoni).

Treno
In Via Forlanini è presente la fermata del treno fr2 Roma Tivoli, che consente un collegamento in 30 minuti con la stazione Tiburtina e anche con stazione Termini con partenza ogni ora.

Ogni agenzia ha un proprio titolare ed è autonoma - Le presenti informazioni non costituiscono elemento contrattuale.

Mostra tutto

Nelle vicinanze

Trasporto pubblico Trasporto pubblico
Ponte Di Nona
Ponte Di Nona
2,2 Km
Ponte di Nona
Ponte di Nona
2,2 Km
Corti/Gorga
Corti/Gorga
220 m
Corti/Oliboni
Corti/Oliboni
260 m
Scuole Scuole
Scuole
810 m
Prampolini
1,2 Km
Istituto comprensivo statale "Giuseppe Impastato"
1,5 Km
Scuola primaria statale
1,6 Km
Istituto Tecnico Agrario "Emilio Sereni"
1,8 Km
Farmacia Farmacia
Farmacia
810 m
Parafarmacia Qualifarma
1,5 Km
Farmacia Palermo
1,7 Km
Farmacia Colle del Sole
1,8 Km
Supermercati Supermercati
Unico
990 m
Panorama
1,4 Km
Supermercati
1,5 Km
EuroSpin
2,8 Km
Negozi Negozi
Panificio
1,3 Km
Ristoranti Ristoranti
Gli Antenati
1,4 Km
L'angolo del Gusto - ristorante e pizzeria
1,7 Km
Mostra tutto

Caratteristiche

Rif.:
61178942
Piano:
1 con ascensore (Piano basso)
Posti auto:
1
Terrazzi:
2
Camere da letto:
3
Arredamento:
Assente
Mostra tutto
Prezzo Prezzo
€ 219.000
Rata mutuo Rata mutuo
€ 1.016 / mese
Proponi il tuo prezzoProponi il tuo prezzo

Classe Energetica

B
B
B
B
B
B
B
B
B
EP invernale del fabbricato:
EP estiva del fabbricato:
Anno di costruzione:
2012
Riscaldamento:
Autonomo
Tipo impianto:
A radiatori
Tipo alimentazione:
Metano

Ti interessa visionare l'immobile?

Fissa un appuntamento  Fissa un appuntamento

Richiedi informazioni

Clicca su Leggi per aprire l'informativa
* Questi campi sono obbligatori

Calcola il tuo mutuo

Semplice e senza impegno
Anticipo

( % )
Mutuo

( % )

pochi semplici passi

inserisci i tuoi dati
Questionario completato
Grazie per aver richiesto un appuntamento senza impegno con un nostro Consulente del Credito e Assicurativo.

Hai inserito correttamente tutti i dati necessari e a breve riceverai una e-mail con un link da convalidare per inviare i tuoi dati.
Affiliato
Studio Ponte Di Nona Srl
Via Raoul Chiodelli , 60 00132 Roma (RM)

Il nostro staff


  • Daniele Mori
    Affiliato
Via Raoul Chiodelli , 60 00132 Roma (RM)
Zona: Ponte di nona -Colle degli Abeti - Colle del Sole
Mostra su mappa
Orari: dal lunedì al venerdì dalle 9:00 alle 13:00 e dalle 15:30 alle 20:00 , il sabato dalle 9:00 alle 17:00 ORARIO CONTINUATO
Affiliato
Studio Ponte Di Nona Srl
Via Raoul Chiodelli , 60 00132 Roma (RM)

2026 Tecnocasa Franchising S.p.A. - P. IVA 08365160152 - Via Monte Bianco 60/A 20089 Rozzano (MI). Ogni agenzia ha un proprio titolare ed è autonoma. Privacy policy | Policy utilizzo | Cookie policy